Lokal biurowy 131.12 m² Wrocław-Stare Miasto
Ofertę prowadzi
Ofertę prowadzi
Vita Kravchynska
Oferta 2089/3265/OLW
Na wynajem
Lokalizacja
Rodzaj budynku
Kamienica
Cena
9 178,40 zł
Cena za m2
70 zł/m²
Powierzchnia
131,12 m²
Piętro
4
Liczba pięter
4
Szczegóły oferty
| Rynek | Wtórny |
| Kaucja | 9178,40 |
| Rodzaj budynku | Kamienica |
| Winda | Tak |
| Monitoring | Tak |
| Przeznaczenie | Biurowe |
| Koszty eksploatacyjne (m2) | 12.00 zł |
| Min. okres najmu (w latach) | 1 |
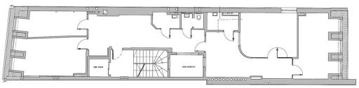
Do wynajęcia klimatyzowany lokal biurowy o pow. 135,69 mkw składający się z holu, 4 pokoi biurowych, pomieszczenia socjalnego, 2 toalety.
Lokalizacja to ścisłe centrum Wrocławia, okolice Rynku, I piętro prestiżowej kamienicy z początku XIX w. wyposażonej w nowoczesną windę.
CENA najmu 70 zł/mkw netto + opłaty eksploatacyjne 12 zł/mkw
Energii elektrycznej na podstawie pod liczników właściwych dla wynajmowanego.
Kaucja: wysokość jednomiesięcznego czynszu
Świadectwo charakterystyki energetycznej zostanie przedłożone do zawarcia umowy, zgodnie z wymogami USTAWY z dnia 7 października 2022 r. o zmianie ustawy o charakterystyce energetycznej budynków oraz ustawy - Prawo budowlane.
Serdecznie Polecam i Zapraszam na prezentację.
Kontakt: Vita Kravchynska, tel. 721 33 55 00
v.kravchynska@swiat.nieruchomosci.pl
ŚWIAT NIERUCHOMOŚCI - BRACIA JUSZCZAK S. C.
Ul. Oławska 28, 50-123 Wrocław
Biuro czynne poniedziałek - piątek 9.00 - 18.00
Uwaga!
Prezentowane w serwisie oferty nie stanowią oferty handlowej w porozumieniu art. 66 Kodeksu Cywilnego i mogą być nieaktualne.
NOTA PRAWNA:
Opis oferty zawarty na stronie internetowej sporządzany jest na podstawie oględzin nieruchomości oraz informacji uzyskanych od właściciela, może podlegać aktualizacji i nie stanowi oferty określonej w art. 66 i następnych K.C
Lokalizacja to ścisłe centrum Wrocławia, okolice Rynku, I piętro prestiżowej kamienicy z początku XIX w. wyposażonej w nowoczesną windę.
CENA najmu 70 zł/mkw netto + opłaty eksploatacyjne 12 zł/mkw
Energii elektrycznej na podstawie pod liczników właściwych dla wynajmowanego.
Kaucja: wysokość jednomiesięcznego czynszu
Świadectwo charakterystyki energetycznej zostanie przedłożone do zawarcia umowy, zgodnie z wymogami USTAWY z dnia 7 października 2022 r. o zmianie ustawy o charakterystyce energetycznej budynków oraz ustawy - Prawo budowlane.
Serdecznie Polecam i Zapraszam na prezentację.
Kontakt: Vita Kravchynska, tel. 721 33 55 00
v.kravchynska@swiat.nieruchomosci.pl
ŚWIAT NIERUCHOMOŚCI - BRACIA JUSZCZAK S. C.
Ul. Oławska 28, 50-123 Wrocław
Biuro czynne poniedziałek - piątek 9.00 - 18.00
Uwaga!
Prezentowane w serwisie oferty nie stanowią oferty handlowej w porozumieniu art. 66 Kodeksu Cywilnego i mogą być nieaktualne.
NOTA PRAWNA:
Opis oferty zawarty na stronie internetowej sporządzany jest na podstawie oględzin nieruchomości oraz informacji uzyskanych od właściciela, może podlegać aktualizacji i nie stanowi oferty określonej w art. 66 i następnych K.C



Drukuj