Apartament 3 pokoje 99.4 m² Wrocław-Krzyki - Południe
Ofertę prowadzi
Ofertę prowadzi
Vita Kravchynska
Oferta 20065/3265/OMS
Na sprzedaż
Lokalizacja
Rodzaj budynku
Apartamentowo-handlowy
Cena
1 999 990 zł
Cena za m2
20 120,62 zł/m²
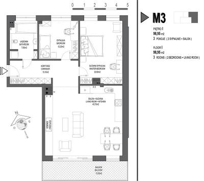
Powierzchnia
99,40 m²
Piętro
1
Liczba pięter
3
Szczegóły oferty
| Rynek | Pierwotny |
| Rodzaj budynku | Apartamentowo-handlowy |
| Stan budynku | Bardzo dobry |
| Winda | Tak |
| Alarm | Tak |
| Domofon | Tak |
| Monitoring | Tak |
| Teren ogrodzony | Tak |
| Typ mieszkania | Apartament |
| Drzwi wejściowe | Przeciwwłamaniowe, Stalowe |
| Rodzaj ogrzewania | CO miejskie |
| Ciepła woda | Wodociąg miejski |
| Cena za garaż | 90 000 zł |
| Komunikacja | Tramwaj, Autobus |
| Stan nieruchomości | Stan deweloperski |
Nowe mieszkanie w stanie Deweloperskim! Projekt, który stanowi swoistego rodzaju korespondencję pomiędzy stylem okresu modernistycznego, a współczesną estetyką trendów w europejskim budownictwie.
To właśnie połączenie atrakcyjnej lokalizacji, nietuzinkowych rozwiązań architektonicznych i prestiżu dzielnicy miasta sprawia, że to wymarzone miejsce do życia dla wymagających osób niedaleko od Sky Tower.
W tej inwestycji znajduje się tylko 11 komfortowych apartamentów z tarasami lub szerokimi balkonami, w zależności od wybranego projektu. Wszystkie mieszkania charakteryzuje wysoki standard wykończenia i bogate wyposażenie obejmujące rozwiązania takie jak: instalacja pod klimatyzację, oraz system inteligentny dom z urządzeniem iPod umożliwiający sterowanie oświetleniem, TV, urządzeniami elektrycznymi, a także klimatyzacją.
Serdecznie Zapraszam na prezentację.
Kontakt:
Vita Kravchynska
tel.: 721 33 55 00
e-mail: v.kravchynska@swiat.nieruchomosci.pl
Świadectwo charakterystyki energetycznej zostanie przedłożone do zawarcia umowy, zgodnie z wymogami USTAWY z dnia 7 października 2022 r. o zmianie ustawy o charakterystyce energetycznej budynków oraz ustawy - Prawo budowlane
ŚWIAT NIERUCHOMOŚCI - BRACIA JUSZCZAK S. C.
Ul. Oławska 28, 50-123 Wrocław
Biuro czynne poniedziałek - piątek 9.00 - 18.00
POMAGAMY RÓWNIEŻ W UZYSKANIU KREDYTÓW HIPOTECZNYCH
Zamieszczone na naszych stronach oferty nie stanowią oferty w rozumieniu Kodeksu Cywilnego, a dane w nich zawarte mają charakter jedynie informacyjny.
To właśnie połączenie atrakcyjnej lokalizacji, nietuzinkowych rozwiązań architektonicznych i prestiżu dzielnicy miasta sprawia, że to wymarzone miejsce do życia dla wymagających osób niedaleko od Sky Tower.
W tej inwestycji znajduje się tylko 11 komfortowych apartamentów z tarasami lub szerokimi balkonami, w zależności od wybranego projektu. Wszystkie mieszkania charakteryzuje wysoki standard wykończenia i bogate wyposażenie obejmujące rozwiązania takie jak: instalacja pod klimatyzację, oraz system inteligentny dom z urządzeniem iPod umożliwiający sterowanie oświetleniem, TV, urządzeniami elektrycznymi, a także klimatyzacją.
Serdecznie Zapraszam na prezentację.
Kontakt:
Vita Kravchynska
tel.: 721 33 55 00
e-mail: v.kravchynska@swiat.nieruchomosci.pl
Świadectwo charakterystyki energetycznej zostanie przedłożone do zawarcia umowy, zgodnie z wymogami USTAWY z dnia 7 października 2022 r. o zmianie ustawy o charakterystyce energetycznej budynków oraz ustawy - Prawo budowlane
ŚWIAT NIERUCHOMOŚCI - BRACIA JUSZCZAK S. C.
Ul. Oławska 28, 50-123 Wrocław
Biuro czynne poniedziałek - piątek 9.00 - 18.00
POMAGAMY RÓWNIEŻ W UZYSKANIU KREDYTÓW HIPOTECZNYCH
Zamieszczone na naszych stronach oferty nie stanowią oferty w rozumieniu Kodeksu Cywilnego, a dane w nich zawarte mają charakter jedynie informacyjny.
Centrum kredytowe z KREDYTem za PAN BRAT



Drukuj