Dom wolnostojący 4 pokoje 194 m² Wrocław-Psie Pole - Widawa
Ofertę prowadzi
Ofertę prowadzi
Mirosław Juszczak - licencja 646
Oferta 2831/3265/ODS
Na sprzedaż
Lokalizacja
Typ domu
Wolnostojący
Cena
2 890 000 zł
Cena za m2
14 896,91 zł/m²
Powierzchnia
194 m²
Powierzchnia działki
600 m²
Liczba pięter
1
Szczegóły oferty
| Stan prawny | Własność |
| Rynek | Wtórny |
| Rok budowy | 2015 |
| Stan budynku | Bardzo dobry |
| Materiał | Bloczki |
| Gaz | Tak |
| Domofon | Tak |
| Typ okien | PCV |
| Drzwi wejściowe | Przeciwwłamaniowe |
| Rodzaj ogrzewania | Gazowe |
| Ciepła woda | Piec gazowy |
| Kominek | Tak |
| Garaż/Miejsca parkingowe | Tak |
| Droga dojazdowa | Asfaltowa |
| Powierzchnia użytkowa | 187 m² |
| Typ domu | Wolnostojący |
| Kształt działki | Prostokąt |
| Ogrodzenie | Mieszane |
| Aranżacja działki | Trawnik |
| Ujęcie wody | Miejska |
| Prąd | Tak |
| Rodzaj kanalizacji | Miejska |
| Dach | Dachówka |
| Rekuperator | Tak |
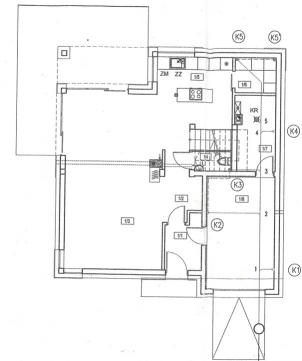
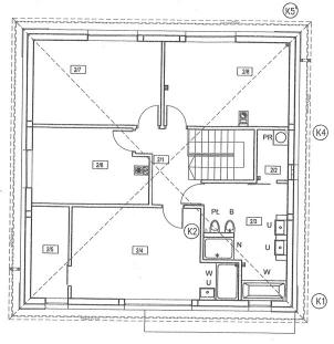
Polecamy do sprzedaży wygodny, wolnostojący budynek mieszkalny z ładnie zagospodarowanym ogrodem. Dom jest niepodpiwniczony, posiada dwie pełne kondygnacje i jest kryty dachem kopertowym z nieużytkowym poddaszem. W budynku znajdują się: na parterze - hol wejściowy, wc, garaż, kotłownia, salon z kuchnią i spiżarką, na piętrze zaś cztery sypialnie, hol i pokój kąpielowy. Dom bardzo solidnie zbudowany około 10 lat temu. Niektóre elementy wykończenia - do odświeżenia.
Obecnie parter budynku został zaaranżowany na cele związane z prowadzeniem małej, klimatycznej restauracji. W związku z tym można nabyć nieruchomość zarówno na cele mieszkalne, jak również na cele związane z gastronomią lub inną działalnością gospodarczą. Możliwe jest przejęcie marki firmy wraz z wszystkimi urządzeniami oraz wartościami niematerialnymi i prawnymi.
W sąsiedztwie znajdują się nowe budynki mieszkalne oraz mieszkalno - usługowe. Okolica cicha i spokojna. Niewielka odległość do węzła autostradowego Wrocław - Północ.
Serdecznie polecamy i zapraszamy na prezentację !
Cena oferowana: Nieruchomość - 2 890 000 zł, Nieruchomość z Restauracją - 3 230 000 zł.
Świadectwo charakterystyki energetycznej zostanie przedłożone do zawarcia umowy, zgodnie z wymogami USTAWY z dnia 7 października 2022 r. o zmianie ustawy o charakterystyce energetycznej budynków oraz ustawy - Prawo budowlane.
Kontakt:
Mirosław Juszczak
tel.: 695-33-55-00
e-mail: m.juszczak@swiat.nieruchomosci.pl
ŚWIAT NIERUCHOMOŚCI - BRACIA JUSZCZAK S. C.
Plac Solny 16, 50-062 Wrocław
Biuro czynne: poniedziałek - piątek 9.00 - 17.00
Ul. Oławska 28, 50-123 Wrocław
Biuro czynne: poniedziałek - piątek 9.00 - 18.00.
POMAGAMY RÓWNIEŻ W UZYSKANIU KREDYTÓW HIPOTECZNYCH W RAMACH WSPÓŁPRACY Z FIRMĄ "CENTRUM KREDYTOWE z KREDYTem ZA PAN BRAT".
Uwaga!
Prezentowane w serwisie oferty nie stanowią oferty handlowej w porozumieniu art. 66 Kodeksu Cywilnego i mogą być nieaktualne.
NOTA PRAWNA:
Opis oferty zawarty na stronie internetowej sporządzany jest na podstawie oględzin nieruchomości oraz informacji uzyskanych od właściciela, może podlegać aktualizacji i nie stanowi oferty określonej w art. 66 i następnych K.C
Polecamy !!!
Obecnie parter budynku został zaaranżowany na cele związane z prowadzeniem małej, klimatycznej restauracji. W związku z tym można nabyć nieruchomość zarówno na cele mieszkalne, jak również na cele związane z gastronomią lub inną działalnością gospodarczą. Możliwe jest przejęcie marki firmy wraz z wszystkimi urządzeniami oraz wartościami niematerialnymi i prawnymi.
W sąsiedztwie znajdują się nowe budynki mieszkalne oraz mieszkalno - usługowe. Okolica cicha i spokojna. Niewielka odległość do węzła autostradowego Wrocław - Północ.
Serdecznie polecamy i zapraszamy na prezentację !
Cena oferowana: Nieruchomość - 2 890 000 zł, Nieruchomość z Restauracją - 3 230 000 zł.
Świadectwo charakterystyki energetycznej zostanie przedłożone do zawarcia umowy, zgodnie z wymogami USTAWY z dnia 7 października 2022 r. o zmianie ustawy o charakterystyce energetycznej budynków oraz ustawy - Prawo budowlane.
Kontakt:
Mirosław Juszczak
tel.: 695-33-55-00
e-mail: m.juszczak@swiat.nieruchomosci.pl
ŚWIAT NIERUCHOMOŚCI - BRACIA JUSZCZAK S. C.
Plac Solny 16, 50-062 Wrocław
Biuro czynne: poniedziałek - piątek 9.00 - 17.00
Ul. Oławska 28, 50-123 Wrocław
Biuro czynne: poniedziałek - piątek 9.00 - 18.00.
POMAGAMY RÓWNIEŻ W UZYSKANIU KREDYTÓW HIPOTECZNYCH W RAMACH WSPÓŁPRACY Z FIRMĄ "CENTRUM KREDYTOWE z KREDYTem ZA PAN BRAT".
Uwaga!
Prezentowane w serwisie oferty nie stanowią oferty handlowej w porozumieniu art. 66 Kodeksu Cywilnego i mogą być nieaktualne.
NOTA PRAWNA:
Opis oferty zawarty na stronie internetowej sporządzany jest na podstawie oględzin nieruchomości oraz informacji uzyskanych od właściciela, może podlegać aktualizacji i nie stanowi oferty określonej w art. 66 i następnych K.C
Polecamy !!!
Centrum kredytowe z KREDYTem za PAN BRAT



Drukuj