Mieszkanie 2 pokoje 54.18 m² Wrocław-Śródmieście
Ofertę prowadzi
Oferta 20511/3265/OMS
Na sprzedaż
Lokalizacja
Rodzaj budynku
Kamienica
Cena
639 000 zł
Cena za m2
11 794,02 zł/m²
Powierzchnia
54,18 m²
Piętro
2
Liczba pięter
4
Szczegóły oferty
| Stan prawny | Własność |
| Stan prawny gruntu | Własność |
| Udział w prawie | 1 |
| Rynek | Wtórny |
| Rodzaj budynku | Kamienica |
| Stan budynku | Bardzo dobry |
| Gaz | Tak |
| Domofon | Tak |
| Kierunek okien w pokojach | Zachód |
| Rodzaj ogrzewania | Elektryczne |
| Ciepła woda | Piec elektryczny |
| Klimatyzacja | Tak |
| Wysokość pomieszczeń (cm) | 330 |
| Powierzchnie pokoi | 12 m² |
| Powierzchnia salonu | 23 m² |
| Podłogi w pomieszczeniach | Panele, Deska podłogowa, Płytki |
| Typ kuchni | Widna |
| Powierzchnia kuchni | 9 m² |
| Liczba łazienek | 1 |
| Powierzchnie łazienek | 3 m² |
| Powierzchnia przedpokoju | 6 m² |
| Liczba balkonów | 1 |
| Piwnica | Tak |
| Powierzchnia piwnicy | 12 m² |
| Czynsz administracyjny | 590 zł |
| Balkon | Tak |
| Stan nieruchomości | Bardzo dobry |
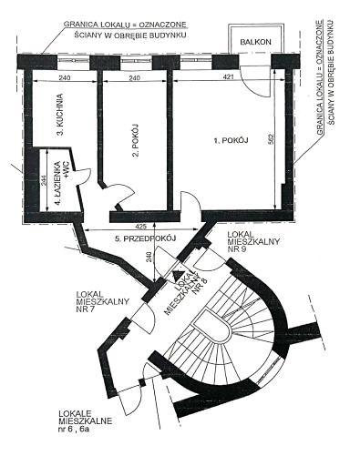
Na sprzedaż przestronne, wysokie mieszkanie 2-pokojowe o powierzchni 54,18 m², położone w doskonałej lokalizacji – Wrocław, ul. Jedności Narodowej. Nieruchomość znajduje się w zadbanej kamienicy po remoncie i oferuje wysoki standard wykończenia.
Układ mieszkania:
Duży, jasny pokój z balkonem,
Sypialnia,
Oddzielna kuchnia z oknem
Łazienka z WC
Korytarz
Bardzo duża piwnica ok. 2 × 6 m
Atuty mieszkania:
Po remoncie: nowa instalacja elektryczna, nowa podłoga, świeże wykończenie
Wysoki standard – eleganckie materiały i zachowane oryginalne detale
Wysokie sufity h=330, charakterystyczne dla kamienic
Klimatyzacja w salonie – komfort przez cały rok
Duża piwnica, idealna jako przestrzeń magazynowa
Oryginalne odrestaurowane dekoracje sufitowe w salonie
Budynek – po generalnych pracach modernizacyjnych:
Remont wykonany ok. 4 lata temu
Kompletna renowacja elewacji
Nowe balkony
Nowa instalacja elektryczna w całym budynku
Dach po remoncie
Odświeżone części wspólne
Zachowane oryginalne drzwi wejściowe
Klimatyczna kamienica w dobrym stanie technicznym
Prężnie działająca wspólnota
Lokalizacja: Śródmieście / Ołbin
Świetna komunikacja – przystanek Daszyńskiego
- liczne linie tramwajowe i autobusowe, szybki dojazd do centrum i uczelni
Pełna infrastruktura – sklepy, punkty usługowe, restauracje, przychodnie, szkoły i przedszkola
Miejskie tereny zielone w zasięgu spaceru – parki, skwery i okolice Odry
Historyczny charakter okolicy i piękna architektura kamienic
Zapraszam na prezentację.
Kontakt do osoby prowadzącej ofertę:
Justyna Juszczak tel.: +48 69 323 69 69
e-mail: j.juszczak@swiat.nieruchomosci.pl
Uwaga!
Prezentowane w serwisie oferty nie stanowią oferty handlowej w porozumieniu art. 66 Kodeksu Cywilnego i mogą być nieaktualne.
NOTA PRAWNA:
Opis oferty zawarty na stronie internetowej sporządzany jest na podstawie oględzin nieruchomości oraz informacji uzyskanych od właściciela, może podlegać aktualizacji i nie stanowi oferty określonej w art. 66 i następnych K.C
OFERTA TYLKO W NASZYM BIURZE NA WYŁĄCZNOŚĆ !
Świadectwo charakterystyki energetycznej zostanie przedłożone do zawarcia umowy, zgodnie z wymogami USTAWY z dnia 7 października 2022 r. o zmianie ustawy o charakterystyce energetycznej budynków oraz ustawy - Prawo budowlane.
Układ mieszkania:
Duży, jasny pokój z balkonem,
Sypialnia,
Oddzielna kuchnia z oknem
Łazienka z WC
Korytarz
Bardzo duża piwnica ok. 2 × 6 m
Atuty mieszkania:
Po remoncie: nowa instalacja elektryczna, nowa podłoga, świeże wykończenie
Wysoki standard – eleganckie materiały i zachowane oryginalne detale
Wysokie sufity h=330, charakterystyczne dla kamienic
Klimatyzacja w salonie – komfort przez cały rok
Duża piwnica, idealna jako przestrzeń magazynowa
Oryginalne odrestaurowane dekoracje sufitowe w salonie
Budynek – po generalnych pracach modernizacyjnych:
Remont wykonany ok. 4 lata temu
Kompletna renowacja elewacji
Nowe balkony
Nowa instalacja elektryczna w całym budynku
Dach po remoncie
Odświeżone części wspólne
Zachowane oryginalne drzwi wejściowe
Klimatyczna kamienica w dobrym stanie technicznym
Prężnie działająca wspólnota
Lokalizacja: Śródmieście / Ołbin
Świetna komunikacja – przystanek Daszyńskiego
- liczne linie tramwajowe i autobusowe, szybki dojazd do centrum i uczelni
Pełna infrastruktura – sklepy, punkty usługowe, restauracje, przychodnie, szkoły i przedszkola
Miejskie tereny zielone w zasięgu spaceru – parki, skwery i okolice Odry
Historyczny charakter okolicy i piękna architektura kamienic
Zapraszam na prezentację.
Kontakt do osoby prowadzącej ofertę:
Justyna Juszczak tel.: +48 69 323 69 69
e-mail: j.juszczak@swiat.nieruchomosci.pl
Uwaga!
Prezentowane w serwisie oferty nie stanowią oferty handlowej w porozumieniu art. 66 Kodeksu Cywilnego i mogą być nieaktualne.
NOTA PRAWNA:
Opis oferty zawarty na stronie internetowej sporządzany jest na podstawie oględzin nieruchomości oraz informacji uzyskanych od właściciela, może podlegać aktualizacji i nie stanowi oferty określonej w art. 66 i następnych K.C
OFERTA TYLKO W NASZYM BIURZE NA WYŁĄCZNOŚĆ !
Świadectwo charakterystyki energetycznej zostanie przedłożone do zawarcia umowy, zgodnie z wymogami USTAWY z dnia 7 października 2022 r. o zmianie ustawy o charakterystyce energetycznej budynków oraz ustawy - Prawo budowlane.
Centrum kredytowe z KREDYTem za PAN BRAT



Drukuj