Lokal biurowy 8 pokoi 241 m² Wrocław-Krzyki - Południe
Ofertę prowadzi
Oferta 2251/3265/OLW
Na wynajem
Lokalizacja
Rodzaj budynku
Budynek biurowy
Cena
11 809 zł
Cena za m2
49 zł/m²
Powierzchnia
241 m²
Piętro
4
Liczba pięter
5
Szczegóły oferty
| Stan prawny | Własność |
| Rynek | Wtórny |
| Rodzaj budynku | Budynek biurowy |
| Stan budynku | Bardzo dobry |
| Winda | Tak |
| Ochrona | Tak |
| Recepcja | Tak |
| Rodzaj ogrzewania | CO miejskie |
| Ciepła woda | Wodociąg miejski |
| Internet | Tak |
| Liczba oddzielnych toalet | 2 |
| Przeznaczenie | Biurowe |
| Przeznaczenie dodatkowe (lokal) | Biurowe, Handlowo/Usługowe |
| Parking naziemny | Tak |
| Światłowód | Tak |
| Rodzaj kanalizacji | Miejska |
| Kontrola dostępu | Tak |
| Zaplecze socjalne | Tak |
| Centrala telefoniczna | Tak |
Polecamy do wynajęcia klimatyzowany moduł biurowy o pow. 241 mkw w komfortowym biurowcu zlokalizowany w doskonałej lokalizacji - Centrum Wrocławia okolice pl. Powstańców Śl.
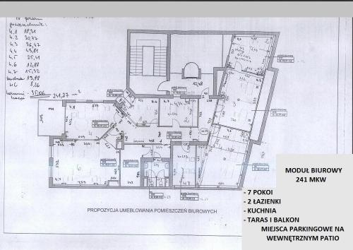
Moduł znajduje się na IV p. składa się z 7 pokoi, 2 łazienek, kuchni, tarasu i balkonu.
Budynek składa się z 5 poziomów na których znajduje się 1451 mkw pomieszczeń biurowych. Na każdym poziomie jest zaplecze sanitarne, aneks kuchenny. W budynku znajduje się nowoczesna winda.
Zaletą są miejsca parkingowe na wewnętrznym dziedzińcu.
Budynek jest wyposażony w instalacje telekomunikacyjną, komputerową, przeciwpożarową oraz klimatyzację.
Czynsz najmu: 49 zł/mkw netto + opłaty eksploatacyjne (około 20 zł/mkw)
Serdecznie Polecam i Zapraszam Na Prezentację.
Robert Miś tel. 663-820-463.
e-mail: r.mis@swiat.nieruchomosci.pl
Uwaga!
Prezentowane w serwisie oferty nie stanowią oferty handlowej w porozumieniu art. 66 Kodeksu Cywilnego i mogą być nieaktualne.
NOTA PRAWNA:
Opis oferty zawarty na stronie internetowej sporządzany jest na podstawie oględzin nieruchomości oraz informacji uzyskanych od właściciela, może podlegać aktualizacji i nie stanowi oferty określonej w art. 66 i następnych K.C
Moduł znajduje się na IV p. składa się z 7 pokoi, 2 łazienek, kuchni, tarasu i balkonu.
Budynek składa się z 5 poziomów na których znajduje się 1451 mkw pomieszczeń biurowych. Na każdym poziomie jest zaplecze sanitarne, aneks kuchenny. W budynku znajduje się nowoczesna winda.
Zaletą są miejsca parkingowe na wewnętrznym dziedzińcu.
Budynek jest wyposażony w instalacje telekomunikacyjną, komputerową, przeciwpożarową oraz klimatyzację.
Czynsz najmu: 49 zł/mkw netto + opłaty eksploatacyjne (około 20 zł/mkw)
Serdecznie Polecam i Zapraszam Na Prezentację.
Robert Miś tel. 663-820-463.
e-mail: r.mis@swiat.nieruchomosci.pl
Uwaga!
Prezentowane w serwisie oferty nie stanowią oferty handlowej w porozumieniu art. 66 Kodeksu Cywilnego i mogą być nieaktualne.
NOTA PRAWNA:
Opis oferty zawarty na stronie internetowej sporządzany jest na podstawie oględzin nieruchomości oraz informacji uzyskanych od właściciela, może podlegać aktualizacji i nie stanowi oferty określonej w art. 66 i następnych K.C



Drukuj