Mieszkanie 3 pokoje 55.24 m² Wrocław-Krzyki - Huby
Ofertę prowadzi
Ofertę prowadzi
Vita Kravchynska
Oferta 20621/3265/OMS
Na sprzedaż
Lokalizacja
Rodzaj budynku
Wysoki blok
Cena
558 000 zł
Cena za m2
10 101,38 zł/m²
Powierzchnia
55,24 m²
Piętro
1
Liczba pięter
11
Szczegóły oferty
| Stan prawny | Własność |
| Rynek | Wtórny |
| Rodzaj budynku | Wysoki blok |
| Stan budynku | Do drobnego remontu |
| Materiał | Wielka Płyta |
| Winda | Tak |
| Domofon | Tak |
| Czynsz administracyjny | 930 zł |
| Balkon | Tak |
Zapraszamy na prezentację mieszkania.
Mieszkanie 3-pokojowe, 55,24 m² + piwnica | ul. Śliczna | Wrocław
Na sprzedaż mieszkanie do remontu własnościowe (pełna własność, księga wieczysta bez hipoteki) o powierzchni 55,24 m² + piwnica 4,8 m².
Lokal znajduje się na 1. piętrze w 11-piętrowym bloku z nową windą.
Dostępne od zaraz.
Najważniejsze atuty
3 niezależne pokoje – idealne pod wynajem lub dla rodziny
osobna, jasna kuchnia z oknem
mieszkanie dwustronne (południe–północ) – bardzo dobrze doświetlone
balkon + klimatyzacja w salonie
pełna własność, brak obciążeń
świetna lokalizacja blisko centrum
budynek po modernizacjach (winda, balkony, ocieplenie)
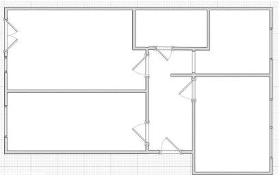
Układ pomieszczeń
salon – 15,2 m² (z balkonem i klimatyzacją)
sypialnia – 12 m²
pokój – 10 m²
kuchnia – 7 m² (oddzielna, z oknem)
łazienka z WC – 4,5 m²
przedpokój – 6,5 m²
piwnica 4,8 m²
Wszystkie pomieszczenia mają osobne wejścia z przedpokoju – brak pokoi przechodnich.
Stan mieszkania
Mieszkanie do remontu / gruntownego odświeżenia, co daje pełną swobodę aranżacji.
Instalacje sprawne: ogrzewanie miejskie, woda, gaz, internet.
Piony wodno-kanalizacyjne zostały wymienione.
Możliwość zmiany układu, np.:
połączenie kuchni z pokojem i przedpokojem
Budynek i koszty
zadbana klatka schodowa
nowa winda
odnowione i wzmocnione balkony
wspólnota mieszkaniowa (nie spółdzielnia)
Czynsz: ok. 930 zł (zawiera ogrzewanie, wodę, zarządzanie i części wspólne)
Dodatkowo: prąd i gaz
Lokalizacja – ul. Śliczna, Wrocław
Świetnie skomunikowana i bardzo wygodna do życia okolica:
Uniwersytet Ekonomiczny – ok. 7 min pieszo
Szpital Kliniczny (Borowska) – ok. 10 min
Wroclavia + Dworzec Główny – ok. 12 min
Aquapark – ok. 5 min
Park Skowroni – w pobliżu
W okolicy: sklepy (Biedronka przy budynku, Lidl), szkoły, przedszkola, apteki, komunikacja miejska.
Zapraszam do kontaktu i na prezentację!
Kontakt:
Vita Kravchynska
tel.: 721 33 55 00
e-mail: v.kravchynska@swiat.nieruchomosci.pl
ŚWIAT NIERUCHOMOŚCI - BRACIA JUSZCZAK S. C.
Plac Solny 16, 50-062 Wrocław
Biuro czynne poniedziałek - piątek 9.00 - 18.00
Ul. Oławska 28, 50-123 Wrocław
Biuro czynne poniedziałek - piątek 9.00 - 18.00
POMAGAMY RÓWNIEŻ W UZYSKANIU KREDYTÓW HIPOTECZNYCH W RAMACH WSPÓŁPRACY Z FIRMĄ "CENTRUM KREDYTOWE z KREDYTem ZA PAN BRAT".
NOTA PRAWNA:
Opis oferty zawarty na stronie internetowej sporządzany jest na podstawie oględzin nieruchomości oraz informacji uzyskanych od właściciela, może podlegać aktualizacji i nie stanowi oferty określonej w art. 66 i następnych K.C
Mieszkanie 3-pokojowe, 55,24 m² + piwnica | ul. Śliczna | Wrocław
Na sprzedaż mieszkanie do remontu własnościowe (pełna własność, księga wieczysta bez hipoteki) o powierzchni 55,24 m² + piwnica 4,8 m².
Lokal znajduje się na 1. piętrze w 11-piętrowym bloku z nową windą.
Dostępne od zaraz.
Najważniejsze atuty
3 niezależne pokoje – idealne pod wynajem lub dla rodziny
osobna, jasna kuchnia z oknem
mieszkanie dwustronne (południe–północ) – bardzo dobrze doświetlone
balkon + klimatyzacja w salonie
pełna własność, brak obciążeń
świetna lokalizacja blisko centrum
budynek po modernizacjach (winda, balkony, ocieplenie)
Układ pomieszczeń
salon – 15,2 m² (z balkonem i klimatyzacją)
sypialnia – 12 m²
pokój – 10 m²
kuchnia – 7 m² (oddzielna, z oknem)
łazienka z WC – 4,5 m²
przedpokój – 6,5 m²
piwnica 4,8 m²
Wszystkie pomieszczenia mają osobne wejścia z przedpokoju – brak pokoi przechodnich.
Stan mieszkania
Mieszkanie do remontu / gruntownego odświeżenia, co daje pełną swobodę aranżacji.
Instalacje sprawne: ogrzewanie miejskie, woda, gaz, internet.
Piony wodno-kanalizacyjne zostały wymienione.
Możliwość zmiany układu, np.:
połączenie kuchni z pokojem i przedpokojem
Budynek i koszty
zadbana klatka schodowa
nowa winda
odnowione i wzmocnione balkony
wspólnota mieszkaniowa (nie spółdzielnia)
Czynsz: ok. 930 zł (zawiera ogrzewanie, wodę, zarządzanie i części wspólne)
Dodatkowo: prąd i gaz
Lokalizacja – ul. Śliczna, Wrocław
Świetnie skomunikowana i bardzo wygodna do życia okolica:
Uniwersytet Ekonomiczny – ok. 7 min pieszo
Szpital Kliniczny (Borowska) – ok. 10 min
Wroclavia + Dworzec Główny – ok. 12 min
Aquapark – ok. 5 min
Park Skowroni – w pobliżu
W okolicy: sklepy (Biedronka przy budynku, Lidl), szkoły, przedszkola, apteki, komunikacja miejska.
Zapraszam do kontaktu i na prezentację!
Kontakt:
Vita Kravchynska
tel.: 721 33 55 00
e-mail: v.kravchynska@swiat.nieruchomosci.pl
ŚWIAT NIERUCHOMOŚCI - BRACIA JUSZCZAK S. C.
Plac Solny 16, 50-062 Wrocław
Biuro czynne poniedziałek - piątek 9.00 - 18.00
Ul. Oławska 28, 50-123 Wrocław
Biuro czynne poniedziałek - piątek 9.00 - 18.00
POMAGAMY RÓWNIEŻ W UZYSKANIU KREDYTÓW HIPOTECZNYCH W RAMACH WSPÓŁPRACY Z FIRMĄ "CENTRUM KREDYTOWE z KREDYTem ZA PAN BRAT".
NOTA PRAWNA:
Opis oferty zawarty na stronie internetowej sporządzany jest na podstawie oględzin nieruchomości oraz informacji uzyskanych od właściciela, może podlegać aktualizacji i nie stanowi oferty określonej w art. 66 i następnych K.C
Centrum kredytowe z KREDYTem za PAN BRAT



Drukuj