Lokal handlowo/usługowy 38.5 m²
Ofertę prowadzi
Szczegóły oferty
| Rynek | Wtórny |
| Kaucja | 3460 |
| Przeznaczenie | Handlowo/Usługowe |
| Min. okres najmu (w latach) | 1 |
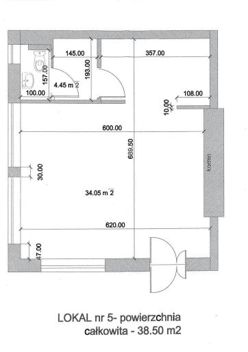
Oferuję na wynajem lokal o powierzchni 38,5 m², położony na parterze budynku usługowo-mieszkalnego w atrakcyjnej lokalizacji – Karłowice, Wrocław.
Atuty lokalu:
- powierzchnia 38,5 m² podzielona na kilka praktycznych pomieszczeń,
- parter – łatwy dostęp dla klientów i dostawców,
- przed budynkiem miejsca parkingowe,
- doskonały układ sprzyjający organizacji biura, punktu obsługi czy zaplecza do handlu internetowego.
Możliwe przeznaczenie:
- działalność biurowa,
- sklep online z magazynem,
- drobna, nieuciążliwa działalność usługowa lub handlowa.
Lokalizacja:
Karłowice – spokojna i dobrze skomunikowana część Wrocławia,
w sąsiedztwie zabudowa jednorodzinna i osiedla wielorodzinne,
łatwy dojazd zarówno samochodem, jak i komunikacją miejską
Koszty:
czynsz najmu: 2000 zł + VAT,
media wg liczników
kaucja 2000 +VAT + 1000 zł zaliczka na media
Lokal gotowy do wynajęcia od zaraz!
Zapraszam do kontaktu w celu uzyskania szczegółów i umówienia prezentacji.
Dostępny również lokal o powierzchni 63,5 m² w tym samym budynku.
Kontakt do osoby prowadzącej ofertę:
Justyna Juszczak tel.: 693 236 969
e-mail: j.juszczak@swiat.nieruchomosci.pl
Uwaga!
Prezentowane w serwisie oferty nie stanowią oferty handlowej w porozumieniu art. 66 Kodeksu Cywilnego i mogą być nieaktualne.
NOTA PRAWNA:
Opis oferty zawarty na stronie internetowej sporządzany jest na podstawie oględzin nieruchomości oraz informacji uzyskanych od właściciela, może podlegać aktualizacji i nie stanowi oferty określonej w art. 66 i następnych K.C
Atuty lokalu:
- powierzchnia 38,5 m² podzielona na kilka praktycznych pomieszczeń,
- parter – łatwy dostęp dla klientów i dostawców,
- przed budynkiem miejsca parkingowe,
- doskonały układ sprzyjający organizacji biura, punktu obsługi czy zaplecza do handlu internetowego.
Możliwe przeznaczenie:
- działalność biurowa,
- sklep online z magazynem,
- drobna, nieuciążliwa działalność usługowa lub handlowa.
Lokalizacja:
Karłowice – spokojna i dobrze skomunikowana część Wrocławia,
w sąsiedztwie zabudowa jednorodzinna i osiedla wielorodzinne,
łatwy dojazd zarówno samochodem, jak i komunikacją miejską
Koszty:
czynsz najmu: 2000 zł + VAT,
media wg liczników
kaucja 2000 +VAT + 1000 zł zaliczka na media
Lokal gotowy do wynajęcia od zaraz!
Zapraszam do kontaktu w celu uzyskania szczegółów i umówienia prezentacji.
Dostępny również lokal o powierzchni 63,5 m² w tym samym budynku.
Kontakt do osoby prowadzącej ofertę:
Justyna Juszczak tel.: 693 236 969
e-mail: j.juszczak@swiat.nieruchomosci.pl
Uwaga!
Prezentowane w serwisie oferty nie stanowią oferty handlowej w porozumieniu art. 66 Kodeksu Cywilnego i mogą być nieaktualne.
NOTA PRAWNA:
Opis oferty zawarty na stronie internetowej sporządzany jest na podstawie oględzin nieruchomości oraz informacji uzyskanych od właściciela, może podlegać aktualizacji i nie stanowi oferty określonej w art. 66 i następnych K.C



Drukuj